40m² Fullbúið hús tvískipt einhalla þak
-
Forsíða
- Fullbúin hús
- 40m² Tvískipt Fullbúið hús
- 40m² Fullbúið hús tvískipt einhalla þak
Vörunúmer: 60300
40m² Fullbúið hús tvískipt einhalla þak
Vörunúmer: 60300
40m² Fullbúið hús tvískipt einhalla þak
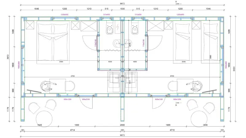
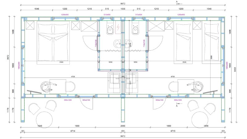
Hagkvæmt og vel útfærð tvískipt 40m² gistieining með tveimur björtum stúdíóíbúðum. Lítil eldhúsinnrétting með tveimur hellum og ísskáp. Baðherbergið er vel skipulagt með lítilli innréttingu, salerni, sturtuklefa og 50 lítra hitakúti. Húsið kemur á sterkbyggðum stálramma sem auðveldar til muna flutning. hægt er að velja um ein- eða tvíhalla þak. Einstaklega hentug eining fyrir ferðaþjónustuna.
Nánar
14.689.900
kr.
HARVIA LEGEND Sauna rafmagns 11kW
Hitaveituskel, 1600 lítra
2.900.000 kr.
HARVIA LEGEND Sauna rafmagns 11kW
2.900.000 kr.
Forsteyptur sökkull -L4336xB200xH500
107.900 kr.
459.900 kr.
14 daga skilaréttur er á öllum vörum.
Viltu dreifa greiðslum?
kr./mán
mánaða greiðsludreifing
% vextir - % lántökugjald (m.vsk) - kr. kostnaður á hverja greiðslu.
Heildarkostnaður: kr. - ÁHK %
Kjörin hér að ofan eru aðeins til viðmiðunar. Endanleg lánakjör verða reiknuð út þegar þú gengur frá kaupunum.
Sambærilegar vörur
Stuðningsvörur
Fylgiskjöl og vottanir